74 1880 Columbia Valley Road, Cultus Lake South Lindell Beach, British Columbia V2R 6G8
$1,299,900
This stunning 2400+ sqft rancher is packed w/ upgrades! 4 bdrms, 3 full baths set against greenbelt in gated Aquadel Crossing community! Feat. smooth painted 10' ceilings on main & large windows, this home exudes luxury. Custom kitchen boasts upgraded cabinets, pot filler & wood shelving, dining area showcases built-in cabinets w/lighting. The greatroom feat vaulted ceilings w/ custom wood beams & executive gas fireplace, beautiful primary bdrm w/tray ceiling & large w/i closet. Every detail, from heated floors to upgraded plumbing & lighting fixtures, elevates the home. A fully insulated, heated garage, custom workshop & landscaped yard w/ irrigation, stonework & custom shed complete the package. High end custom finishes throughout! Call today for a list of property features & highlights! * PREC - Personal Real Estate Corporation (id:59116)
Property Details
| MLS® Number | R2959599 |
| Property Type | Single Family |
| Pool Type | Outdoor Pool |
| Storage Type | Storage |
| Structure | Workshop |
| View Type | Mountain View |
Building
| Bathroom Total | 3 |
| Bedrooms Total | 4 |
| Amenities | Laundry - In Suite, Recreation Centre |
| Appliances | Washer, Dryer, Refrigerator, Stove, Dishwasher |
| Architectural Style | Basement Entry |
| Basement Development | Finished |
| Basement Type | Full (finished) |
| Constructed Date | 2022 |
| Construction Style Attachment | Detached |
| Cooling Type | Central Air Conditioning |
| Fireplace Present | Yes |
| Fireplace Total | 1 |
| Heating Type | Forced Air |
| Stories Total | 2 |
| Size Interior | 2,413 Ft2 |
| Type | House |
Parking
| Garage | 2 |
| R V |
Land
| Acreage | No |
| Size Frontage | 53 Ft |
| Size Irregular | 4057 |
| Size Total | 4057 Sqft |
| Size Total Text | 4057 Sqft |
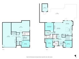
Rooms
| Level | Type | Length | Width | Dimensions |
|---|---|---|---|---|
| Basement | Recreational, Games Room | 26 ft ,7 in | 17 ft ,4 in | 26 ft ,7 in x 17 ft ,4 in |
| Basement | Bedroom 4 | 12 ft ,1 in | 10 ft ,1 in | 12 ft ,1 in x 10 ft ,1 in |
| Basement | Storage | 4 ft ,7 in | 5 ft ,1 in | 4 ft ,7 in x 5 ft ,1 in |
| Basement | Utility Room | 7 ft | 3 ft ,5 in | 7 ft x 3 ft ,5 in |
| Main Level | Great Room | 14 ft ,2 in | 16 ft ,1 in | 14 ft ,2 in x 16 ft ,1 in |
| Main Level | Dining Room | 13 ft ,3 in | 7 ft ,1 in | 13 ft ,3 in x 7 ft ,1 in |
| Main Level | Kitchen | 12 ft ,3 in | 14 ft ,4 in | 12 ft ,3 in x 14 ft ,4 in |
| Main Level | Pantry | 4 ft ,1 in | 4 ft ,2 in | 4 ft ,1 in x 4 ft ,2 in |
| Main Level | Primary Bedroom | 12 ft ,9 in | 16 ft ,1 in | 12 ft ,9 in x 16 ft ,1 in |
| Main Level | Other | 7 ft ,5 in | 6 ft ,6 in | 7 ft ,5 in x 6 ft ,6 in |
| Main Level | Bedroom 2 | 9 ft ,7 in | 12 ft ,4 in | 9 ft ,7 in x 12 ft ,4 in |
| Main Level | Bedroom 3 | 11 ft ,8 in | 10 ft ,1 in | 11 ft ,8 in x 10 ft ,1 in |
| Main Level | Laundry Room | 5 ft ,8 in | 6 ft ,3 in | 5 ft ,8 in x 6 ft ,3 in |
| Main Level | Foyer | 8 ft | 6 ft ,9 in | 8 ft x 6 ft ,9 in |
Contact Us
Contact us for more information
Sabrina Vandenbrink
Personal Real Estate Corporation
chilliwackproperties.net/
201-5580 Vedder Rd
Chilliwack, British Columbia V2R 5P4
















































































