1705 Hillier Road E Unit# 2 Sicamous, British Columbia V0E 2V4
$299,500Maintenance, Pad Rental
$439.88 Monthly
Maintenance, Pad Rental
$439.88 MonthlyStep into comfort & style with this beautifully finished 2021 Moduline home, still covered under warranty! Nestled in the sought-after Deer Run Estates in Sicamous, BC, this double-wide manufactured home is located just 5 minutes from the marina, schools, shopping, & dining, you’ll love living in this vibrant lakeside community. With a pet-friendly fenced yard on a generous 0.1-acre lot, you’ll have plenty of space for your furry friends to roam. Enjoy the north-facing deck, perfect for summer BBQs, & three parking spaces for all your vehicles or recreational toys. Inside, the home is thoughtfully designed for both privacy & functionality. The spacious primary bedroom features a full ensuite bath & a walk-in closet, while the 2nd bedroom, located on the opposite end of the home, is ideal for guests or a roommate with its own full bathroom. The open-concept kitchen boasts an impressive amount of counter space, perfect for cooking up a feast or hosting friends. This isn’t your typical manufactured home—this is a space designed for modern living, entertaining, & making memories. Take advantage of nearby amenities like the riverfront dog park, just 1 minute away. Exciting community upgrades: a new medical center, a daycare & infant care center, the Rail Trail, splash park, & family-friendly beaches, Sicamous is more than just a town—it’s a lifestyle. Come see for yourself why this home is your opportunity to embrace simple living in style. (id:59116)
Property Details
| MLS® Number | 10333039 |
| Property Type | Single Family |
| Neigbourhood | Sicamous |
| Features | Balcony |
| Parking Space Total | 3 |
| Storage Type | Storage Shed |
Building
| Bathroom Total | 2 |
| Bedrooms Total | 2 |
| Appliances | Range, Refrigerator, Dishwasher, Water Heater - Electric, Microwave, Oven, Hood Fan, Washer & Dryer |
| Constructed Date | 2021 |
| Cooling Type | Wall Unit |
| Exterior Finish | Vinyl Siding |
| Fireplace Fuel | Electric |
| Fireplace Present | Yes |
| Fireplace Type | Unknown |
| Flooring Type | Vinyl |
| Foundation Type | Block |
| Heating Fuel | Electric |
| Heating Type | Forced Air |
| Roof Material | Asphalt Shingle |
| Roof Style | Unknown |
| Stories Total | 1 |
| Size Interior | 958 Ft2 |
| Type | Manufactured Home |
| Utility Water | Municipal Water |
Parking
| See Remarks |
Land
| Acreage | No |
| Current Use | Mobile Home |
| Sewer | Municipal Sewage System |
| Size Irregular | 0.1 |
| Size Total | 0.1 Ac|under 1 Acre |
| Size Total Text | 0.1 Ac|under 1 Acre |
| Zoning Type | Unknown |
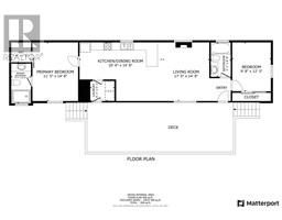
Rooms
| Level | Type | Length | Width | Dimensions |
|---|---|---|---|---|
| Main Level | Bedroom | 9'8'' x 12'3'' | ||
| Main Level | Full Bathroom | 5'1'' x 8'8'' | ||
| Main Level | Laundry Room | 6'1'' x 5'1'' | ||
| Main Level | Full Ensuite Bathroom | 5'0'' x 14'8'' | ||
| Main Level | Primary Bedroom | 11'5'' x 14'8'' | ||
| Main Level | Living Room | 17'0'' x 14'8'' | ||
| Main Level | Kitchen | 20'6'' x 14'8'' |
https://www.realtor.ca/real-estate/27832057/1705-hillier-road-e-unit-2-sicamous-sicamous
Contact Us
Contact us for more information
Jessica Klikach
Personal Real Estate Corporation
www.jessicaklikach.com/
https://www.facebook.com/JessicaKlikachRealtor/
#6-1133 Eagle Pass Way
Sicamous, British Columbia V0E 2V0








































































